1993 Lyon Avenue, Riverside, CA 92503 (MLS # TR25251435)

Save to Favorites
Print
Share

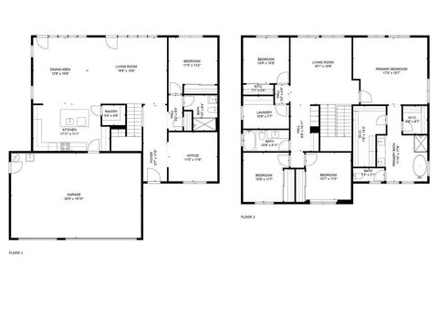
Brand New Construction in a Cul-de-Sac in a Wonderful Neighborhood Welcome to this stunning newly built home, featuring 5 bedrooms, 3 full bathrooms, and an expansive 2,931 square feet of thoughtfully designed living space. Nestled on over 1 acre of land in a serene cul-de-sac in a charming and highly desirable neighborhood. Imagine being the very first owner of this incredible property, which boasts exclusive access to a peaceful creeka true nature-lover's retreat. Features You'll Love: Spacious Layout: Designed with modern living in mind, this home offers expansive square footage and a seamless flow between spaces. Gourmet Kitchen: Beautiful quartz countertops provide ample space for cooking and entertaining, making this kitchen the heart of the home. Luxurious Master Suite: The master bedroom features two generous walk-in closets and an elegant en-suite bathroom. Relax in the free-standing modern bathtub or enjoy the spa-like experience of the glass-enclosed shower, complete with a waterfall feature and brass accents. Contemporary Design: Stylish glass stair railings create a sleek, open feel, complementing the home's airy architecture. High-Quality Finishes: Durable, premium vinyl flooring throughout ensures both beauty and easy maintenance. Indoor-Outdoor Living: Large folding glass doors connect the interior to the outdoor space, perfect for hosting gatherings or simply enjoying California's gorgeous weather. Additional Highlights: High-End Fixtures: Designer lighting and premium hardware enhance the home's functionality and luxurious aesthetic. Energy Efficiency: Equipped with state-of-the-art solar panels and energy-saving features to support a sustainable lifestyle. Ample Storage: Generously sized bedrooms and walk-in closets, as well as custom built-in shelving throughout the home. : Prewired for cutting-edge smart technology, making modern living effortless. Low-Maintenance Landscaping: Beautifully landscaped with lush natural grass and equipped with a smart irrigation system for water efficiency. Special Touches: Anderson black windows, a striking metal entrance door, and Bluetooth-operated exhaust fans add sleek, modern details. Additional conveniences include an RV-accessible side gate, offering flexibility for storage or recreational needs. Every detail in this property has been carefully considered to ensure comfort, style, and practicality. Dont miss the opportunity to make this dream home yours!

DAYS ON MARKET 2 LAST UPDATED 10/31/2025
YEAR BUILT 2025 GARAGE SPACES 3.0
COUNTY Riverside STATUS Active
PROPERTY TYPE(S) Single Family


ADDITIONAL DETAILS
AIR Central Air
AIR CONDITIONING Yes
GARAGE Yes
HEAT Forced Air
LOT 1.22 acre(s)
LOT DESCRIPTION Cul-De-Sac
SEWER Public Sewer
STORIES 2
VIEW Yes
VIEW DESCRIPTION Creek/Stream, Mountain(s)
WATER Public
MORTGAGE CALCULATOR
   

TOTAL MONTHLY PAYMENT

0
P
I
*Estimate only
Listed with KW Vision

This information is deemed reliable but not guaranteed. You should rely on this information only to decide whether or not to further investigate a particular property. BEFORE MAKING ANY OTHER DECISION, YOU SHOULD PERSONALLY INVESTIGATE THE FACTS (e.g. square footage and lot size) with the assistance of an appropriate professional. You may use this information only to identify properties you may be interested in investigating further. All uses except for personal, non-commercial use in accordance with the foregoing purpose are prohibited. Redistribution or copying of this information, any photographs or video tours is strictly prohibited. This information is derived from the Internet Data Exchange (IDX) service provided by San Diego MLS®. Displayed property listings may be held by a brokerage firm other than the broker and/or agent responsible for this display. The information and any photographs and video tours and the compilation from which they are derived is protected by copyright. Compilation ©2025 San Diego MLS®, Inc.

Properties on this website was last updated as recently as 11/2/25 3:33 AM PST.

This IDX solution is (c) Diverse Solutions 2025.


SATELLITE VIEW



 
CONTACT US ABOUT 1993 LYON AVENUE
 / 
We respect your online privacy and will never spam you. By submitting this form with your telephone number you are consenting for Chad Dannecker to contact you even if your name is on a Federal or State "Do not call List".