31226 Belford Drive, San Juan Capistrano, CA 92675 (MLS # OC25257990)

Save to Favorites
Print
Share

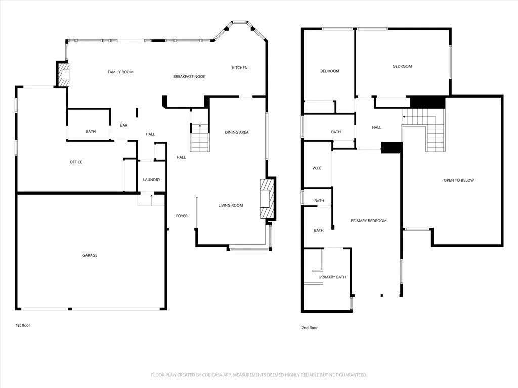
Belford Terrace area 0.4 mi to St. Margarets Episcopal School Owned solar Cathedral ceilings Skylights Major primary bath remodel Large office/Den Synthetic turf yards Three-car garage Set on a 10,500 sq ft lot in the Belford Terrace area of San Juan Capistrano, 31226 Belford Dr. offers 2,851 sq ft of thoughtfully upgraded living space with a focus on light, scale, and long-term efficiency. Cathedral ceilings, skylights, crown molding, recessed lighting, and double-pane windows create a bright interior, while two marble fireplaces provide architectural anchors in the living and family rooms. The expansive downstairs office delivers privacy and flexibility, making it suitable for a variety of uses. The kitchen is outfitted with extensive cabinetry featuring pull-out drawers, Pergo flooring, a Bosch dishwasher, Jenn-Air microwave, oven and stove and generous storage. Plantation shutters, custom blinds, and ceiling fans are integrated throughout the home. Den could be converted back to a fourth bedroom suite... and an added plus it is downstairs. Perfect for a parent or grandparent. The primary suite is designed for comfort and scale, featuring vaulted ceilings, a reading area, enjoy the privacy and comport on the balcony, walk-in closet, and a spacious four-fixture bath with a separate tub and shower. A major primary bath remodel and extended den remodel enhance both function and layout. Additional skylights in the primary bath further elevate natural light. Recent and notable upgrades include an owned solar system, relined interior plumbing with fiberglass-coated pipes, a brand new hot water heater installed September 2025, a Southland security system, and an updated concrete driveway. Stonework enhances the front yard, adding curb appeal and durability. Outdoor spaces are designed for easy maintenance, with synthetic turf in both the front and rear yards and a drip irrigation system. The rear patio is offered fully furnished. A three-car garage provides additional functionality with a workbench, utility sink, and extra storage. Conveniently located approximately 0.4 miles from St. Margarets Episcopal School, close to additional public and private schools, shopping, dining, parks, and recreation, and approximately 0.5 miles to freeway access. No HOA and no Mello-Roos.

DAYS ON MARKET 0 LAST UPDATED 1/28/2026
TRACT Belford Terrace (BT) YEAR BUILT 1981
GARAGE SPACES 3.0 COUNTY Orange
STATUS Active PROPERTY TYPE(S) Single Family


ADDITIONAL DETAILS
AIR Central Air
AIR CONDITIONING Yes
APPLIANCES Dishwasher, Disposal, Gas Water Heater, Microwave, Refrigerator, Washer
GARAGE Yes
HEAT Forced Air
LOT 10498 sq ft
LOT DIMENSIONS 10500
PARKING Garage
SEWER Public Sewer
STORIES 2
STYLE Contemporary
SUBDIVISION Belford Terrace (BT)
UTILITIES Electricity Available, Electricity Connected, Sewer Connected, Water Connected
WATER Public
MORTGAGE CALCULATOR
   

TOTAL MONTHLY PAYMENT

0
P
I
*Estimate only
Listed with Next Home First Choice Realty

This information is deemed reliable but not guaranteed. You should rely on this information only to decide whether or not to further investigate a particular property. BEFORE MAKING ANY OTHER DECISION, YOU SHOULD PERSONALLY INVESTIGATE THE FACTS (e.g. square footage and lot size) with the assistance of an appropriate professional. You may use this information only to identify properties you may be interested in investigating further. All uses except for personal, non-commercial use in accordance with the foregoing purpose are prohibited. Redistribution or copying of this information, any photographs or video tours is strictly prohibited. This information is derived from the Internet Data Exchange (IDX) service provided by San Diego MLS®. Displayed property listings may be held by a brokerage firm other than the broker and/or agent responsible for this display. The information and any photographs and video tours and the compilation from which they are derived is protected by copyright. Compilation ©2026 San Diego MLS®, Inc.

Properties on this website was last updated as recently as 1/29/26 6:21 AM PST.

This IDX solution is (c) Diverse Solutions 2026.


SATELLITE VIEW



 
CONTACT US ABOUT 31226 BELFORD DRIVE
 / 
We respect your online privacy and will never spam you. By submitting this form with your telephone number you are consenting for Chad Dannecker to contact you even if your name is on a Federal or State "Do not call List".