27832 Aberdeen #56, Mission Viejo, CA 92691 (MLS # OC26001245)

Save to Favorites
Print
Share

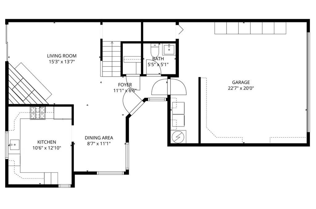
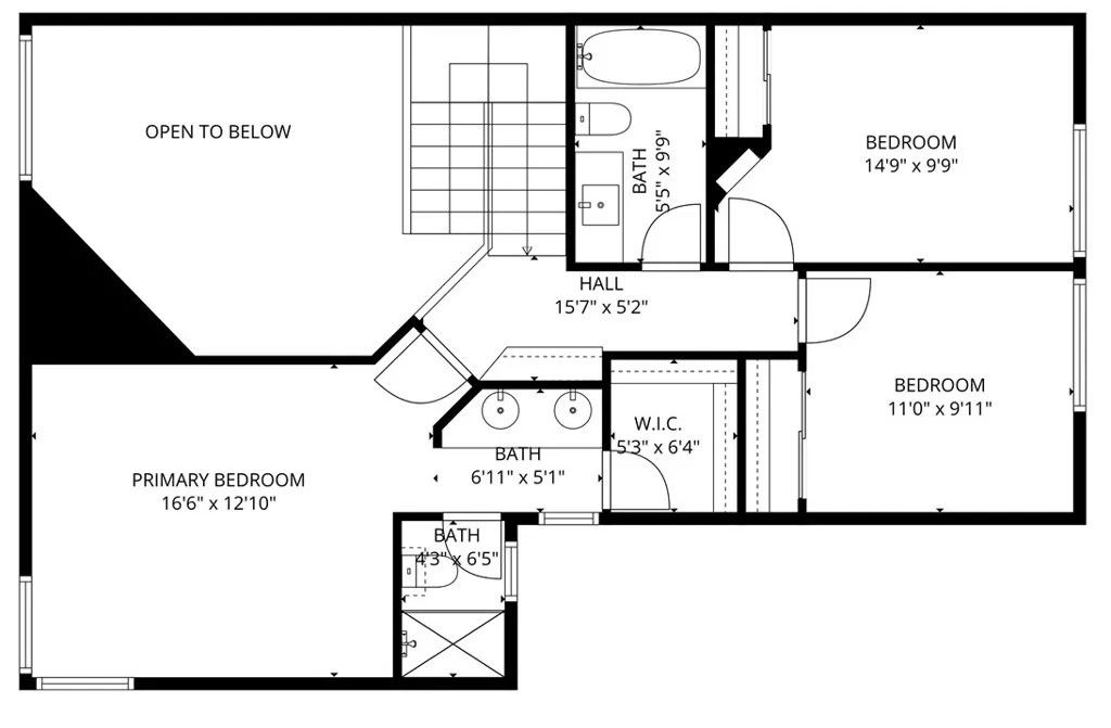
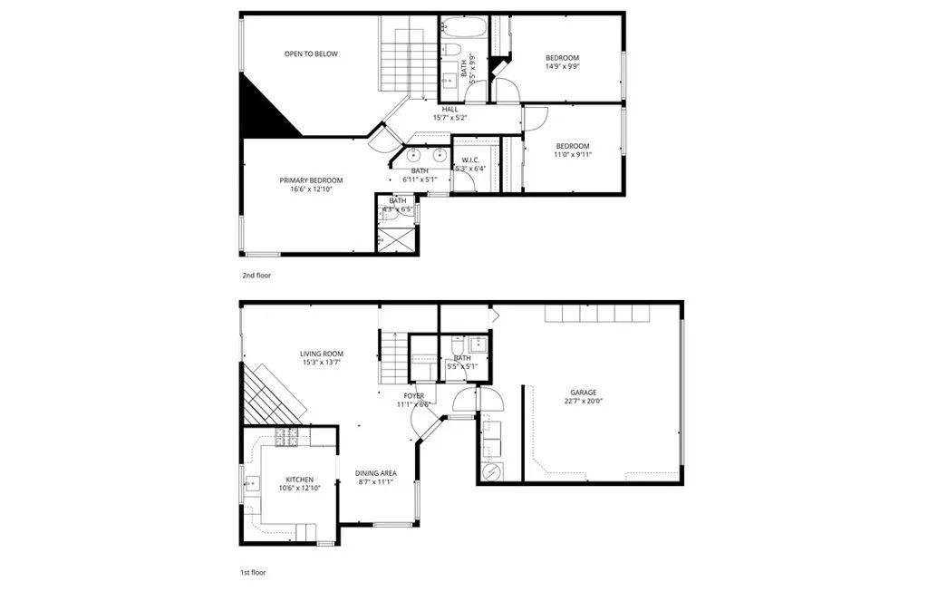
If youve been searching for the perfect townhome-style property, look no further. This beautifully remodeled 3-bedroom, 2.5-bath home features luxury vinyl wood flooring throughout, newer cabinetry with quartz countertops, updated windows, plantation shutters, and blinds. The kitchen is equipped with stainless steel appliances, including a refrigerator, washer, and dryer. Tasteful paint selections, updated lighting fixtures, and a cozy fireplace enhance the homes warm and modern feel. The primary bathroom has been completely remodeled with a brand-new master shower. Move-in ready, this home also offers a private yard with gardener service and breathtaking views of the hills, mountains, golf course, **and a peek-a-boo ocean view**. Additional highlights include a two-car garage and access to a community pool and spa. Ideally located near Saddleback College, Mission Viejo Mall, Shopping, Dinning, Mission Hospital, and convenient 5 Freeway access. A must-see property.

DAYS ON MARKET 1 LAST UPDATED 1/10/2026
TRACT Highland Park Condos (HP) YEAR BUILT 1987
GARAGE SPACES 2.0 COUNTY Orange
STATUS Active PROPERTY TYPE(S) Condo/Townhouse/Co-Op


ADDITIONAL DETAILS
AIR Central Air, Gas
AIR CONDITIONING Yes
APPLIANCES Dishwasher, Disposal, Dryer, Gas Water Heater, Refrigerator, Vented Exhaust Fan, Washer
CONSTRUCTION Stucco
FIREPLACE Yes
GARAGE Yes
HEAT Fireplace(s), Forced Air
HOA DUES 474
LOT 0
PARKING Assigned, Garage
POOL DESCRIPTION Association, Gunite, Heated, Fenced, In Ground
SEWER Public Sewer
STORIES 2
STYLE Cottage
SUBDIVISION Highland Park Condos (HP)
UTILITIES Electricity Available, Natural Gas Available, Cable Available, Cable Connected, Electricity Connected, Natural Gas Connected, Phone Available, Sewer Connected, Water Connected
VIEW Yes
VIEW DESCRIPTION Golf Course, Panoramic, City Lights, Mountain(s), Valley
WATER Public
MORTGAGE CALCULATOR
   

TOTAL MONTHLY PAYMENT

0
P
I
*Estimate only
Listed with Landmark Realtors

This information is deemed reliable but not guaranteed. You should rely on this information only to decide whether or not to further investigate a particular property. BEFORE MAKING ANY OTHER DECISION, YOU SHOULD PERSONALLY INVESTIGATE THE FACTS (e.g. square footage and lot size) with the assistance of an appropriate professional. You may use this information only to identify properties you may be interested in investigating further. All uses except for personal, non-commercial use in accordance with the foregoing purpose are prohibited. Redistribution or copying of this information, any photographs or video tours is strictly prohibited. This information is derived from the Internet Data Exchange (IDX) service provided by San Diego MLS®. Displayed property listings may be held by a brokerage firm other than the broker and/or agent responsible for this display. The information and any photographs and video tours and the compilation from which they are derived is protected by copyright. Compilation ©2026 San Diego MLS®, Inc.

Properties on this website was last updated as recently as 1/11/26 5:34 PM PST.

This IDX solution is (c) Diverse Solutions 2026.


SATELLITE VIEW



 
CONTACT US ABOUT 27832 ABERDEEN #56
 / 
We respect your online privacy and will never spam you. By submitting this form with your telephone number you are consenting for Chad Dannecker to contact you even if your name is on a Federal or State "Do not call List".