1585 Sycamore Street, Gridley, CA 95948 (MLS # OR25239008)

Save to Favorites
Print
Share

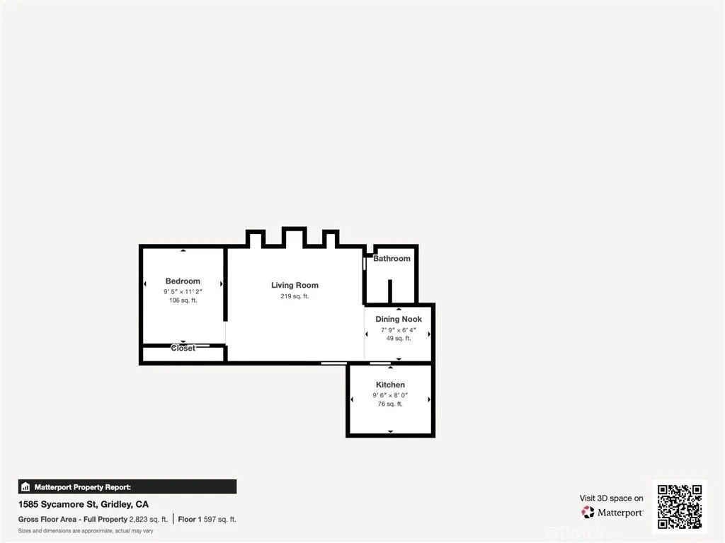
Charming Updated 1914 Home with Guest Suite! 5 Bed, 3 Bath on Corner Lot in Gridley. Welcome to this beautifully updated 1914 home offering 5 bedrooms and 3 bathrooms, situated on a spacious corner lot in the heart of Gridley. With fresh paint and new carpet throughout, this home blends historic charm with modern comfort. The basement has been thoughtfully converted into a private 1 bedroom, 1 bathroom suite complete with its own kitchen and living area, ideal for rental income, guests, or extended family. A lovely mature tree graces the front yard, and sidewalks provide easy access to the surrounding neighborhood. Located just minutes from local schools, shopping, and downtown Gridley, this property offers both convenience and versatility. The second downstairs unit is perfect for in-laws, tenants, or as a separate living space. Dont miss out on this unique opportunity in a great location!

DAYS ON MARKET 1 LAST UPDATED 10/13/2025
YEAR BUILT 1914 COUNTY Butte
STATUS Active PROPERTY TYPE(S) Single Family


ADDITIONAL DETAILS
AIR Wall/Window Unit(s)
AIR CONDITIONING Yes
HEAT Forced Air
LOT 6970 sq ft
LOT DESCRIPTION Corner Lot
SEWER Public Sewer
STORIES 1
UTILITIES Electricity Available, Natural Gas Available, Electricity Connected, Natural Gas Connected, Sewer Connected, Water Connected
VIEW Yes
VIEW DESCRIPTION Neighborhood
WATER Public
MORTGAGE CALCULATOR
   

TOTAL MONTHLY PAYMENT

0
P
I
*Estimate only
Listed with Real Brokerage Technologies, Inc

This information is deemed reliable but not guaranteed. You should rely on this information only to decide whether or not to further investigate a particular property. BEFORE MAKING ANY OTHER DECISION, YOU SHOULD PERSONALLY INVESTIGATE THE FACTS (e.g. square footage and lot size) with the assistance of an appropriate professional. You may use this information only to identify properties you may be interested in investigating further. All uses except for personal, non-commercial use in accordance with the foregoing purpose are prohibited. Redistribution or copying of this information, any photographs or video tours is strictly prohibited. This information is derived from the Internet Data Exchange (IDX) service provided by San Diego MLS®. Displayed property listings may be held by a brokerage firm other than the broker and/or agent responsible for this display. The information and any photographs and video tours and the compilation from which they are derived is protected by copyright. Compilation ©2025 San Diego MLS®, Inc.

Properties on this website was last updated as recently as 10/14/25 7:34 AM PDT.

This IDX solution is (c) Diverse Solutions 2025.


SATELLITE VIEW



 
CONTACT US ABOUT 1585 SYCAMORE STREET
 / 
We respect your online privacy and will never spam you. By submitting this form with your telephone number you are consenting for Chad Dannecker to contact you even if your name is on a Federal or State "Do not call List".