4523 Lexington, Los Angeles, CA 90029 (MLS # PW26025573)

Save to Favorites
Print
Share

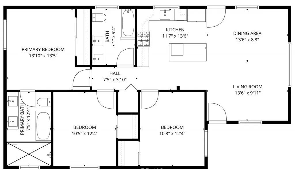
Welcome to this stunningly reimagined Silver Lake home, thoughtfully redesigned for modern living with elevated finishes, open flow, and turnkey comfort. This 3-bedroom, 2-bath residence has been fully transformed from the studs up, blending contemporary design with high-performance systems and timeless style. The home features all new electrical wiring with an upgraded new panel, new copper plumbing, a new roof, and a new energy efficient HVAC system. This property was taken down to the studs and rebuilt with new insulation, drywall, and all new windows, ensuring both comfort and energy efficiency. A custom kitchen anchors this home with high-end fixtures, stainless steel appliances, and a professional-grade 36-inch range, creating an inviting space for daily living and entertaining. Spa-inspired bathrooms showcase modern finishes, while new flooring, designer paint, and contemporary interior doors deliver a clean, elevated look throughout. The exterior has been thoughtfully designed to complement the interior aesthetic while maximizing functionality, featuring a rebuilt carport that serves a dual purpose as a covered patio for outdoor living or protection for your vehicle, along with a new driveway, automatic gate, and fencing for added privacy. Both front and back yards are finished with new irrigation and fresh sod, completing a clean, modern outdoor environment that is both stylish and low maintenance Located in one of the most desirable neighborhoods in Los Angeles, this home offers close proximity to Silver Lakes best restaurants, shopping, and entertainment, with easy access to major freeways, Downtown LA, Dodger Stadium, and just down the street from Erewhon. This is a rare opportunity to own a fully renovated, move-in-ready home in the heart of Silver Lake.

DAYS ON MARKET 1 LAST UPDATED 4/12/2026
YEAR BUILT 1963 COUNTY Los Angeles
STATUS Active PROPERTY TYPE(S) Single Family


ADDITIONAL DETAILS
AIR Central Air
AIR CONDITIONING Yes
LOT 4003 sq ft
LOT DIMENSIONS 4,000-7,499 SF
SEWER Public Sewer
STORIES 1
WATER Public
MORTGAGE CALCULATOR
   

TOTAL MONTHLY PAYMENT

0
P
I
*Estimate only
Listed with T.N.G. Real Estate Consultants

This information is deemed reliable but not guaranteed. You should rely on this information only to decide whether or not to further investigate a particular property. BEFORE MAKING ANY OTHER DECISION, YOU SHOULD PERSONALLY INVESTIGATE THE FACTS (e.g. square footage and lot size) with the assistance of an appropriate professional. You may use this information only to identify properties you may be interested in investigating further. All uses except for personal, non-commercial use in accordance with the foregoing purpose are prohibited. Redistribution or copying of this information, any photographs or video tours is strictly prohibited. This information is derived from the Internet Data Exchange (IDX) service provided by San Diego MLS®. Displayed property listings may be held by a brokerage firm other than the broker and/or agent responsible for this display. The information and any photographs and video tours and the compilation from which they are derived is protected by copyright. Compilation ©2026 San Diego MLS®, Inc.

Properties on this website was last updated as recently as 4/13/26 8:49 AM PDT.

This IDX solution is (c) Diverse Solutions 2026.


SATELLITE VIEW



 
CONTACT US ABOUT 4523 LEXINGTON
 / 
We respect your online privacy and will never spam you. By submitting this form with your telephone number you are consenting for Chad Dannecker to contact you even if your name is on a Federal or State "Do not call List".