868 S Calle Venado, Anaheim, CA 92807 (MLS # PW26029519)

Save to Favorites
Print
Share

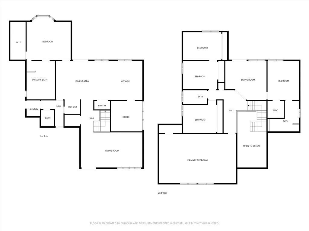
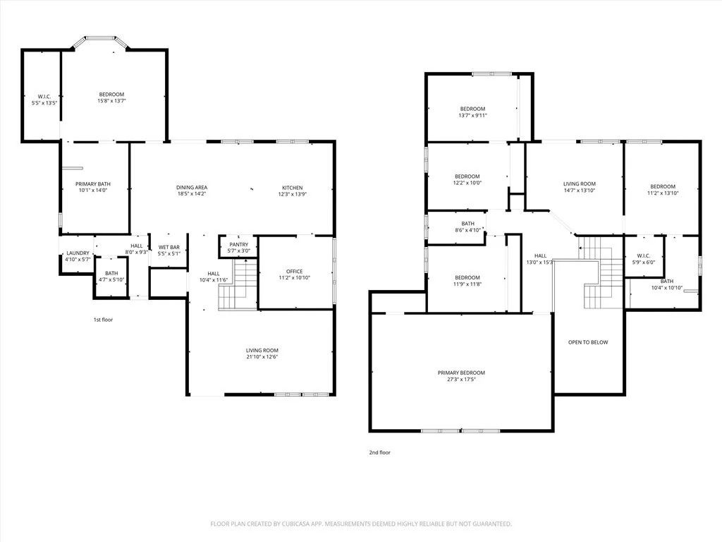
This expansive Anaheim Hills residence offers 45 bedrooms and 4 bathrooms, set in a quiet no-HOA enclave with no rear neighbors and breathtaking panoramic views of the canyon, mountains, and nature reserve. Enjoy peaceful sunrises, exceptional privacy, and a highly desirable hillside setting. Designed for entertaining and everyday comfort, the home features a large great room ideal for a home theater, two wet bars, seamless indoor-outdoor living, a wrap-around view deck, multiple patios, indoor and outdoor BBQ areas, and a private spa retreat. The flexible layout includes a permitted downstairs primary suite with beautiful views, a second primary bedroom upstairs, and two office spacesperfect for multi-generational living or working from home. Bright living areas capture natural light and scenic outlooks throughout. Additional highlights include low-maintenance landscaping, automatic attic ventilation, extra storage shed, built-in garage cabinetry, newer roof, updated HVAC and water heater, water softener and filtration system, and direct access toward canyon trails. Layout note: Tax records reflect 4 bedrooms and 3 bathrooms; the home now offers 4 bathrooms by permit, with a potential 5th bedroom conversion without permits. Buyer to verify. A rare opportunity to own a private view home offering space, flexibility, and tranquil Anaheim Hills living.

DAYS ON MARKET 3 LAST UPDATED 4/5/2026
YEAR BUILT 1975 GARAGE SPACES 3.0
COUNTY Orange STATUS Active
PROPERTY TYPE(S) Single Family

PRICE HISTORY
Prior to Mar 11, '26 $1,800,000
Mar 11, '26 - Apr 5, '26 $1,749,990
Apr 5, '26 - Today $1,664,900


ADDITIONAL DETAILS
AIR Central Air
AIR CONDITIONING Yes
APPLIANCES Dishwasher, Microwave, Refrigerator
GARAGE Yes
LOT 5998 sq ft
LOT DIMENSIONS 4,000-7,499 SF
SEWER Public Sewer
STORIES 2
VIEW Yes
VIEW DESCRIPTION Valley
WATER Public
MORTGAGE CALCULATOR
   

TOTAL MONTHLY PAYMENT

0
P
I
*Estimate only
Listed with Ryan Banderas, Broker

This information is deemed reliable but not guaranteed. You should rely on this information only to decide whether or not to further investigate a particular property. BEFORE MAKING ANY OTHER DECISION, YOU SHOULD PERSONALLY INVESTIGATE THE FACTS (e.g. square footage and lot size) with the assistance of an appropriate professional. You may use this information only to identify properties you may be interested in investigating further. All uses except for personal, non-commercial use in accordance with the foregoing purpose are prohibited. Redistribution or copying of this information, any photographs or video tours is strictly prohibited. This information is derived from the Internet Data Exchange (IDX) service provided by San Diego MLS®. Displayed property listings may be held by a brokerage firm other than the broker and/or agent responsible for this display. The information and any photographs and video tours and the compilation from which they are derived is protected by copyright. Compilation ©2026 San Diego MLS®, Inc.

Properties on this website was last updated as recently as 4/8/26 11:09 AM PDT.

This IDX solution is (c) Diverse Solutions 2026.


SATELLITE VIEW



 
CONTACT US ABOUT 868 S CALLE VENADO
 / 
We respect your online privacy and will never spam you. By submitting this form with your telephone number you are consenting for Chad Dannecker to contact you even if your name is on a Federal or State "Do not call List".